2011 Hillman Way
Roebuck, SC 29376

  • $214,999
  • Available   
  • 3 bedrooms  
  • 2 full baths  
  • 1 half baths  
  • 1400-1599 sqft  
  • Lot: 0.06 Acres  
  • MLS#: 1561459   
  • Trenton Place  
Contact An Agent Now

Property Details

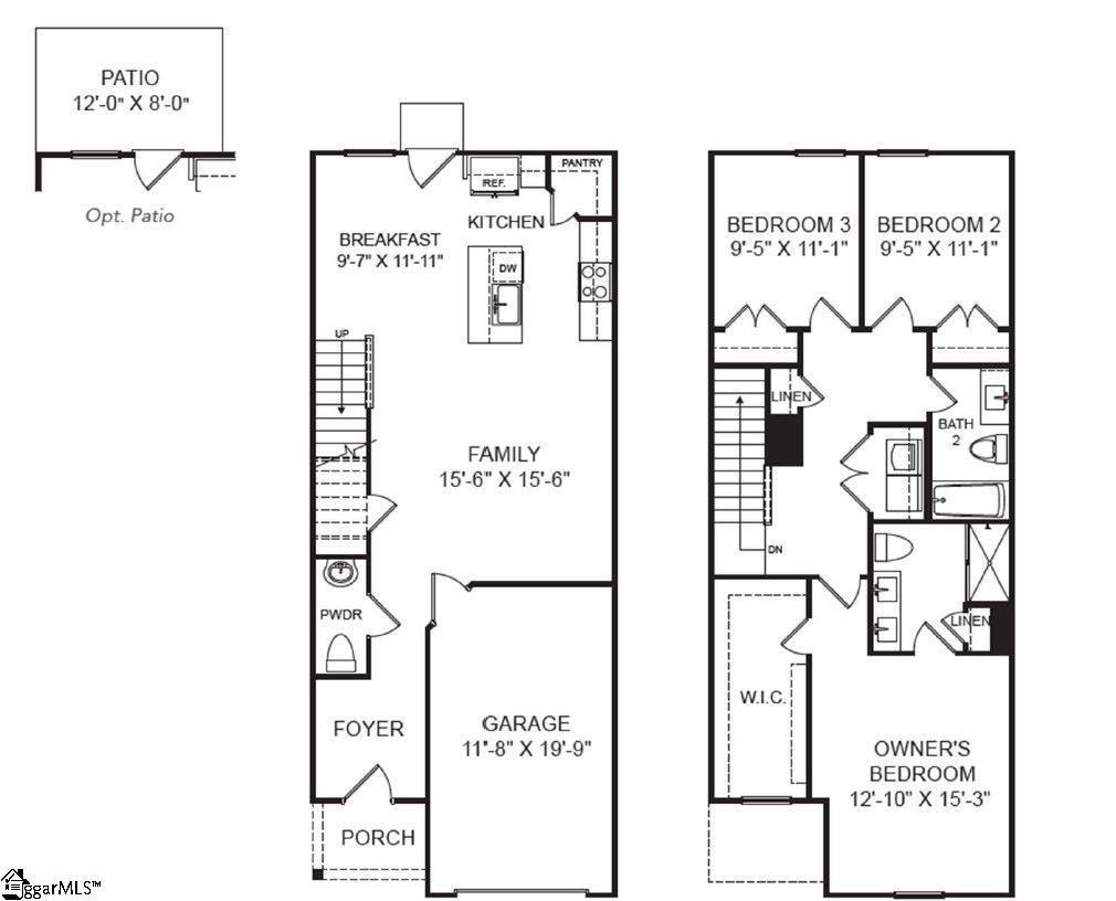
To schedule an appointment call Stefanie Miller 843-813-1860. Discover the perfect balance of affordability and elevated living at Trenton Place, a thoughtfully designed community just minutes from Downtown Spartanburg. USDA eligible! Conveniently located near major employers with easy access to I-26 and I-85, Trenton Place offers unmatched convenience and comfort. This 2-story townhome features an open-concept floor plan with 3 spacious bedrooms, 2.5 bathrooms, and a one car garage. Enjoy modern finishes such as hard surface flooring in the main living areas, elegant quartz countertops, white shaker cabinets, a gas stove, a large kitchen island, a huge corner pantry and included refrigerator. This home also includes whole house blinds. Step into the primary suite, where you’ll find a beautiful bath with sliding glass shower doors, a dual vanity, and a generous walk-in closet that is a must see. Entertain with ease on your large private rear patio, complete with fencing on each side for privacy – perfect for gatherings and quiet evenings alike. At Trenton Place, you’ll also enjoy maintenance-free living with landscaping and lawn care included. Planned amenities such as a playground and outdoor firepit area will create the ideal setting for neighbors, friends, and family to connect. This is more than a home—it’s a lifestyle. There’s never been a better time to explore Trenton Place and make Spartanburg your new home. Schedule your tour today!

Listed by: Stefanie Miller, Veranda Homes, LLC

More Details
  • Craftsman Style  
  • High School: Dorman  
  • Middle School: Gable  
  • Elementary School: Roebuck  
  • Interior Features: 2 Story Foyer,Attic Stairs Disappearing,Ceiling Smooth,Countertops-Solid Surface,Open Floor Plan,Smoke Detector,Walk In Closet  
  • Floors: Carpet,Vinyl,Luxury Vinyl Tile/Plank  
  • Exterior Features: Patio,Porch-Front  
  • Exerior Finish: Stone,Vinyl Siding  
  • Lot Features: Level  
  • Subdivision: Trenton Place  
  • Garage Size: 1  
  • Listing Type: Townhouse  

Error Message

×