1634 Sundiata Street
Piedmont, SC 29673

  • $269,999
  • Available   
  • 4 bedrooms  
  • 3 full baths  
  • 1800-1999 sqft  
  • Lot: 0.05 Acres  
  • MLS#: 1574498   
  • Woodmont Springs  
Contact An Agent Now

Property Details

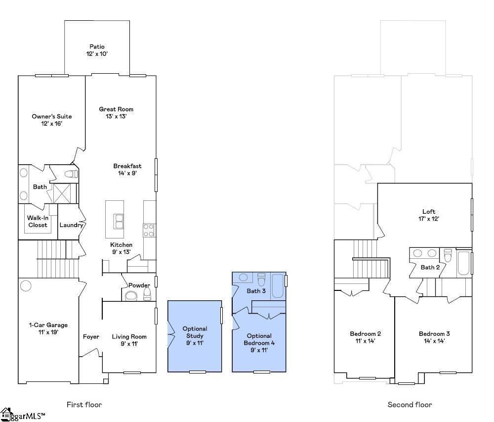
Welcome home to the beautiful Berkley. This home embodies sophistication and elegance. As you enter the home you will find a beautiful light-filled guest bedroom with en suite bathroom. The chef's kitchen features white and gray shaker style cabinets with a stunning quartz countertop, tile backsplash, and a 5-burner gas range with griddle. The kitchen is open to the breakfast room and large great room where you can enjoy hosting friends and family. The stunning primary suite features a spa-like en-suite with tiled shower, private water closet, and large walk-in closet. Upstairs offers an amazing loft space which is great for another family room, media room, or craft room...the possibilities are endless!! Plus, two more secondary bedrooms and a full bath and dual sinks. . Woodmont Springs is a master-planned community offering new single-family and multi-family homes, located in Piedmont, SC. Nestled along the Saluda River, Piedmont is a charming southern area bringing tons of outdoor activities, parks and recreation within close reach. Go fishing, kayaking, whitewater rafting, camping and hiking at the Upper Saluda River. Nearby are Greenville Zoo and Piedmont Athletic Complex. 15 miles north is Greenville and in less than 30 miles is Greer for more shopping, dining and entertainment options.

Listed by: Katherine Jarrett, Lennar Carolinas LLC

More Details
  • Craftsman Style  
  • High School: Woodmont  
  • Middle School: Woodmont  
  • Elementary School: Sue Cleveland  
  • Interior Features: Ceiling 9ft+,Ceiling Smooth,Open Floor Plan,Smoke Detector,Walk In Closet,Countertops – Quartz,Pantry – Closet  
  • Floors: Carpet,Luxury Vinyl Tile/Plank  
  • Exterior Features: Patio,Tilt Out Windows,Vinyl/Aluminum Trim  
  • Exerior Finish: Stone,Vinyl Siding  
  • Lot Features: Underground Utilities  
  • Subdivision: Woodmont Springs  
  • Garage Size: 1  
  • Listing Type: Townhouse  

Error Message

×